章节引言(Chapter 3 Intro)
电压暂降(voltage sags)和中断(interruptions)是彼此相关的电能质量问题。这两类问题通常都是由电力系统中的故障(faults)以及为隔离故障区段所采取的开关动作引起的。它们的特征是电压有效值(rms)出现超出正常运行范围的变化。
电压暂降是短持续时间(通常 0.5 到 30 周波)的电压有效值降低,原因包括电力系统故障以及大负荷(例如电机)启动。短暂中断(momentary interruptions,通常不超过 2~5 s)会导致电压完全消失,并且通常是公用事业单位为清除系统暂时性故障所采取动作的常见结果。持续中断(sustained interruptions)若超过 1 min,通常是由于永久性故障(permanent faults)造成的。
由于暂降和中断,电力公司面临的关于供电质量的投诉数量不断上升。这背后有若干原因,其中最重要的是各类客户(居民、商业和工业)都拥有了更敏感的负荷。大量数字计算机以及其他电子控制类型设备的涌入,是问题的核心原因。计算机控制往往会丢失其存储状态(memory),而且被控制的工艺过程也往往更加复杂,因此重启所需时间更长。工业界为了在竞争中保持优势,越来越依赖自动化设备来实现最大生产率。因此,一次中断会带来相当可观的经济影响。
3.1 暂降与中断的来源(Sources of Sags and Interruptions)
电压暂降和中断通常由公用电网系统中的故障(短路)引起。请考虑图 3.1 中所示系统:某客户由 1 号断路器所供馈线供电。如果同一条馈线上发生故障,那么客户在故障期间会经历一次电压暂降;当断路器跳开以清除故障时,客户会随后经历一次中断。如果该故障是暂时性的,那么断路器的重合闸操作(reclosing)应能成功,中断也就只是暂时性的。断路器通常需要大约 5~6 周波动作,在这段时间内会发生一次电压暂降。根据电力公司重合闸策略,断路器保持断开状态的时间通常至少约 12 周波,最长可到 5 s。敏感设备几乎肯定会在这次中断期间跳闸。
更常见的事件其实是:故障发生在变电站其他馈线上(即并行馈线故障),或者发生在输电系统的某处(见图 3.1 中的故障位置)。在这两种情况下,客户会在故障实际存在于系统上的这段时间内经历电压暂降。一旦断路器跳开并清除故障,客户侧电压就会恢复正常。
要注意图中输电系统故障的清除需要 A、B 两个断路器都动作。输电断路器通常会在 5~6 周波内清除故障。在这个例子中,配电变电站由两条线路供电,而只有其中一条发生故障。因此,由该变电站供电的客户通常只会看到电压暂降,而不会看到中断。馈线 4 上的配电故障可能由支线熔断器(lateral fuse)或断路器清除,具体取决于电力公司的“保熔丝(fuse-saving)”策略。
这些故障位置中的任何一个,都可能导致客户设施中的设备误动作。输电系统故障与配电系统故障的相对重要性,取决于系统的具体特性(如地下配电还是架空配电、雷电密度、架空暴露程度等)以及设备对电压暂降的敏感性。图 3.2 给出了某工业用户的统计示例,显示导致设备误动作的事件按故障位置分布情况。请注意,在这个例子中,客户本馈线上的故障仅占导致设备误动作事件的 23%。这说明,理解电力系统的电压暂降性能以及设备对此类事件的敏感性是非常重要的。

Figure 3.1 Fault locations on the utility power system.

Figure 3.2 Example of fault locations that caused misoperation of sensitive production equipment at an industrial facility (the example system had multiple overhead distribution feeders and an extensive overhead transmission system supplying the substation).
图 3.3 和图 3.4 展示了一次有意思的公用电网故障事件,该事件由电力研究院(EPRI)研究项目中的 8010 PQNode 仪器在电力系统两个位置记录得到。这两幅图中,上面的图表是随时间变化的电压有效值(rms)变化曲线;下面的图表是实际波形前 175 ms 的波形片段。图 3.3 显示的是在馈线未故障部分某客户位置测得的特征。图 3.4 显示的是在故障点下游位置观测到的短暂中断(实际上是两次独立中断)。本例中的开断设备是一台线路重合器(line recloser),它可以非常快地切除故障,约 2.5 周波即可完成。这种设备可以有多种整定方式。本例中,它被设置为“两次快速动作 + 两次延时动作”。图 3.3 只显示了第一次快速动作对应的短暂暂降,电压降至 65%。第二次快速动作时也发生了一次完全相同的暂降。虽然这种暂降很短,几乎不会通过灯光闪烁被察觉,但很多工业过程实际上已经会因此停机。
图 3.4 清楚显示了故障清除前的电压暂降,以及随后两次快速重合器动作。重合时间(reclose time,即重合器保持断开状态的时间)略大于 2 s,这是公用线路重合器非常常见的时间。显然,该故障(可能是一根树枝)并没有在第一次动作时被完全清除,因此迫使设备进行了第二次动作。系统在第二次动作后恢复。
这次典型事件中有几点值得注意,它们会与本书其他内容相关联:
故障期间电压并没有像教科书示例中常假设的那样降为零。现实中真正符合教科书极端情形的例子很少。
线路重合器能够非常快地检测并切除故障。人们常有一种误解,认为配电系统故障切除总是比输电系统慢。实际上它有时确实更慢,但也可能更快。
由于故障期间电压并未跌落到零,感应电机仍会保有励磁并继续向故障馈电。对分布式发电(第 9 章)而言,这一点尤其重要。

Figure 3.3 Voltage sag due to a short-circuit fault on a parallel utility feeder.

Figure 3.4 Utility short-circuit fault event with two fast trip operations of utility line recloser.
3.2 估算电压暂降性能(Estimating Voltage Sag Performance)
理解供电系统预期的电压暂降性能非常重要,这样才能在设施设计和设备规格制定阶段确保生产设施实现最佳运行。下面给出一个与工业客户协同工作、以保证“供电系统特性”和“用户设施运行”相互兼容的一般步骤:
确定由输电系统故障引起的电压暂降数量及其特征。
确定由配电系统故障引起的电压暂降数量及其特征(针对由配电系统供电的设施)。
确定设备对电压暂降的敏感性。该步骤将基于步骤 1 和步骤 2 所得到的电压暂降性能,决定生产过程的实际表现。
评估不同改进方案的经济性。这些方案既可以是在供电系统侧(减少电压暂降次数),也可以是在客户设施侧(提高抗扰度/immunity)。
本章后续会对这一流程中的各步骤做更详细的讨论。
3.2.1 脆弱区域(Area of Vulnerability)
为了帮助评估敏感设备遭遇低于其最小电压暂降穿越能力(minimum voltage sag ride-through capability)电压的可能性,人们提出了“脆弱区域(area of vulnerability)”这一概念。这里的最小电压暂降穿越能力,是指某台设备在不误动作或不失效的情况下能够承受(或容忍)的最小电压幅值。这个量也称作设备的电压暂降抗扰度(immunity)或易损阈值(susceptibility limit)。脆弱区域由“总线路暴露长度(total circuit miles of exposure)”决定,即那些一旦发生故障就会使终端用户设施电压降到低于设备最小电压暂降穿越能力的线路长度总和。图 3.5 给出了一个脆弱区域示意图,针对的是某由配电系统供电的终端用户设施中的电机接触器(motor contactor)和调速驱动(ASD)负荷。这些负荷会受到输电系统和配电系统故障的共同影响。某设施实际可能遭遇的电压暂降次数,是把脆弱区域与该部分电力系统的预期故障性能(expected fault performance)结合起来后确定的。预期故障性能通常由历史数据得到。

Figure 3.5 Illustration of an area of vulnerability.
3.2.2 设备对电压暂降的敏感性(Equipment Sensitivity to Voltage Sags)
终端用户设施中的设备,对电压暂降的敏感性可能差异很大。设备对电压暂降的敏感性在很大程度上取决于具体负荷类型、控制整定值以及应用场景。因此,往往很难明确判断:给定一次电压暂降中哪些特征最可能导致设备误动作。最常用的两个特征是:
暂降持续时间(duration)
暂降幅值(magnitude)
较少使用、但有时也会影响设备表现的特征包括:
相位偏移(phase shift)
不平衡(unbalance)
缺相电压(missing voltage)
暂降事件期间的三相电压不平衡
暂降开始和结束时对应的波形相位位置(point-in-the-wave)
总体而言,设备对电压暂降的敏感性可分为三类:
仅对暂降幅值敏感的设备。
这类设备包括欠压继电器(undervoltage relays)、过程控制器(process controls)、电机驱动控制器(motor drive controls)以及许多自动化设备(例如半导体制造设备)。这类设备对暂降(或暂升)期间经历的最小(或最大)电压幅值敏感,而扰动持续时间通常是次要因素。
同时对暂降幅值和持续时间敏感的设备。
几乎所有使用电子电源(electronic power supplies)的设备都属于这一类。当电源输出电压低于规定值时,这类设备就会误动作或失效。因此,对这类设备最重要的特征是:电压有效值低于某个设备跳闸阈值的持续时间有多长。
对幅值和持续时间之外其他特征敏感的设备。
有些设备会受到其他暂降特征影响,例如暂降期间相间不平衡、暂降起始时的波形相位位置,或扰动期间出现的暂态振荡。这些特征比幅值和持续时间更微妙,其影响也更难概括。因此,这里定义的基于有效值变化的性能指标主要聚焦于更常见的“幅值 + 持续时间”特征。
对于具有敏感工艺的终端用户,电压暂降穿越能力(ride-through capability)通常是最重要的设备特性。
这类负荷往往会受到非常短持续时间事件的影响。而几乎所有电压暂降条件的持续时间至少也会达到 4~5 周波(除非故障由限流熔断器清除)。因此,量化设备对电压暂降敏感性的最常用方法之一,就是使用图 3.6 所示的“幅值-持续时间”图。该图给出了“会导致设备误动作的电压暂降幅值”随暂降持续时间变化的关系。
图中标记为 CBEMA 的曲线代表典型设备敏感性特征。该曲线由 CBEMA 制定,并被 IEEE 446(橙皮书,Orange Book)采用。由于该协会在 1994 年重组并随后更名为 ITI(Information Technology Industry Council),CBEMA 曲线也被更新并更名为 ITI 曲线。典型负荷在电压落到 CBEMA(或 ITI)曲线以下时,很可能会跳闸。
图中标记为 ASD 的曲线是一个对电压暂降非常敏感的调速驱动装置的示例穿越能力曲线。该设备对于持续仅 4 周波、但幅值低于 0.9 pu 的暂降就会跳闸。接触器(contactor)曲线代表典型接触器的暂降穿越特性。它在电压低于 0.5 pu 且持续超过 1 周波时会跳闸。
图 3.5 中针对电机接触器的脆弱区域表示:凡是在该区域内发生的故障,都会导致终端用户电压降到 0.5 pu 以下。如果电机接触器的最小暂降穿越能力是 0.5 pu,那么当脆弱区域内发生持续超过 1 周波的故障暂降时,它就会跳闸。相反,脆弱区域之外的故障不会导致电压降到 0.5 pu 以下。对 ASD 负荷的脆弱区域也可做同样理解。设备越不敏感,其脆弱区域就越小(因此暂降导致误动作的次数也越少)。

Figure 3.6 Typical equipment voltage sag ride-through capability curves.
3.2.3 输电系统暂降性能评估(Transmission System Sag Performance Evaluation)
某一客户设施的电压暂降性能取决于其是由输电系统供电还是由配电系统供电。对于由输电系统供电的客户,电压暂降性能只取决于输电系统故障性能;对于由配电系统供电的客户,电压暂降性能则同时取决于输电系统和配电系统的故障性能。本节讨论估算某设施整体电压暂降性能中“输电系统贡献”的方法;第 3.2.4 节讨论配电系统贡献。
由于现代输电网络具有较强互联性,输电线路故障以及随后保护装置跳开,极少会对客户造成真正中断,但这类故障确实会引起电压暂降。暂降是否会导致设备误动作,还取决于设备本身特性。因此,能够估算终端用户位置可能出现的电压暂降非常重要。
大多数电力公司都建立了互联输电系统的详细短路模型,可供诸如 ASPEN OneLiner(见图 3.7)之类的软件使用。这些程序能够计算系统在不同位置发生故障时各处电压变化;许多程序还可以在输电线路沿线任意位置施加故障,以计算某一特定地点的脆弱区域(area of vulnerability)。
在分析中还必须考虑故障类型。单相接地故障(SLG fault)在客户设备处造成的电压暂降,与三相故障(three-phase fault)造成的暂降并不相同。终端设备处电压特征还取决于变压器接线方式如何改变电压,以及设备是相对地连接还是相间连接。表 3.1 总结了当一次侧发生单相接地故障时,客户变压器二次侧电压情况。

Figure 3.7 Example of modeling the transmission system in a short-circuit program for calculation of the area of vulnerability.

Table 3.1 Transformer Secondary Voltages with a Single-Line-to-Ground Fault on the Primary.

Figure 3.8 Voltage sag types at end-use equipment that result from different types of faults and transformer connections.
表 3.1 中的关系说明:当三角形-接地星形变压器一次侧发生单相接地故障时,变压器二次侧任何相对地或相间电压都不会降为零。二次侧最低电压幅值取决于设备接法:相间连接设备将经历最低约 33% 电压,相对中性点连接设备将经历最低约 58% 电压。这说明,判断供电系统故障期间设备实际经历电压时,变压器接线方式和设备接线方式都非常关键。
Math Bollen 提出了“电压暂降类型(voltage sag types)”概念,用来描述不同故障条件和系统结构下终端用户侧可能经历的不同暂降特征,图 3.8 给出了常见的五种类型。表 3.2 给出了一个脆弱区域列表示例,列出所有会使客户设备电压跌到 80% 以下的故障位置。该例对应条件为:设备相间连接,通过一台三角-星形变压器由 Tennessee 输电系统 132-kV 母线供电。将脆弱区域与该区域内预期故障次数结合,即可得到预期性能。
故障性能通常以“每 100 英里线路、每年故障次数(faults per 100 miles/year)”描述。多数电力公司会维护各输电电压等级故障统计,这些统计数据可与脆弱区域结合,用于估算预期电压暂降性能。图 3.9 给出了一个示例:由于输电系统故障导致客户设备处每年预期发生的电压暂降次数,并按暂降类型分解,因为设备对“三相都受影响的暂降”和“仅一相或两相受影响的暂降”敏感性可能不同。

Table 3.2 Calculating Expected Sag Performance at a Specific Customer Site for a Given Voltage Level.

Figure 3.9 Estimated voltage sag performance at customer equipment due to transmission system faults.
Figure 3.10 Typical distribution system illustrating protection devices.
3.2.4 公用配电系统暂降性能评估(Utility Distribution System Sag Performance Evaluation)
在配电电压等级供电的客户,会同时受到输电系统和配电系统故障的影响。配电层面的分析还必须包含“由保护装置动作清除故障所造成的短暂中断(momentary interruptions)”,这类中断很可能使敏感设备跳闸。本节示例用于说明评估预期电压暂降与短暂中断性能时所需数据及计算步骤。终端用户设施的整体电压暂降性能,等于输电系统与配电系统两部分预期电压暂降性能之和。
图 3.10 显示了一个典型配电系统,包含多条馈线、熔断支线和保护装置。电力公司的保护方案(protection scheme)对电压暂降和短暂中断性能起重要作用。计算电压暂降性能所需的关键信息包括:由该变电站供电的馈线数量、平均馈线长度、平均馈线电抗、变电站处短路等值电抗、若有则馈线电抗器参数,以及平均馈线故障性能数据(3LG 与 SLG 的每英里每月故障次数)。馈线故障性能数据可由保护记录获得;由下游熔断器或下游保护装置切除的故障数据则常需估算。
配电系统故障位置有两类:同一馈线故障(same feeder)和并行馈线故障(parallel feeders)。需要为特定客户定义脆弱区域,以表示会使客户点电压低于设备暂降穿越能力的故障暴露总线路长度。预期电压暂降性能可按如下步骤计算。
并行馈线故障(Faults on parallel feeders)
终端用户在并行馈线故障后经历的电压,可通过计算变电站处预期电压幅值估计。变电站处电压幅值受故障阻抗与故障位置、电力系统结构(configuration)以及系统保护方案共同影响。图 3.11 说明了在径向配电系统中,变电站与故障点距离对 3LG 与 SLG 故障电压表现的影响,其中 SLG 曲线对应“一次侧 A 相对地故障,经三角-接地星形降压变压器二次侧得到的 A-B 相间母线电压”。终端用户位置实际电压可通过表 3.1 对变电站电压进行换算得到。
对最小穿越电压为 v_{s} 的特定敏感设备,其并行馈线故障电压暂降性能可写为:
其中, N_{1}、N_{3} 分别为 SLG 与 3LG 故障性能数据(单位:每英里每月故障次数); E_{p1}、E_{p3} 分别为并行馈线上会使终端用户电压低于最小穿越电压 v_{s} 的 SLG 与 3LG 故障暴露总线路长度(circuit miles)。
同一馈线故障(Faults on the same feeder)
此步需要计算终端用户位置的预期电压暂降幅值,并将其表示为同一馈线故障位置的函数。这里只计算会引起“暂降”而不会引起“短暂中断”的故障位置;短暂中断将单独计算。此类故障位置包括:位于下游重合器之后的故障,或位于某分支熔断器之后、且该熔断器与变电站重合器配合良好并先于变电站重合器清除故障的位置。
对最小穿越电压为 v_{s} 的特定敏感设备,同一馈线故障导致的电压暂降性能可写为:
其中, E_{s1}、E_{s3} 分别是同一馈线上会导致终端用户电压低于 v_{s} 的 SLG 与 3LG 故障暴露总线路长度。于是,总预期电压暂降性能为:
对其他电压阈值重复该计算即可绘制类似图 3.9 的曲线。指定位置预期中断性能可通过“会导致客户设施串联路径中断路器或其他保护装置动作的暴露长度”确定。若保护策略为“馈线上任意故障都使变电站断路器动作”,则该长度等于总暴露长度,预期中断次数为:
其中, L_{\text{int}} 为会在终端用户设施产生中断的 SLG 与 3LG 故障暴露总线路长度(circuit miles)。

Figure 3.11 Example of voltage sag magnitude at an end-user location as a function of the fault location along a parallel feeder circuit.
3.3 保护的基本原则(Fundamental Principles of Protection)
公用事业单位、终端用户以及设备制造商都可以采取若干措施,以减少电压暂降的次数和严重程度,并降低设备对电压暂降的敏感性。图 3.12 展示了电压暂降解决方案的不同选择及其相对成本。
如该图所示,通常在最低层级、也就是最靠近负载的位置处理问题,成本更低。最佳答案是将暂降穿越能力(ride-through capability)直接纳入设备规范本身。
这在本质上意味着把“问题设备”挡在工厂之外,或者至少提前识别出所需的电能调节(power conditioning)要求。
这里概述的若干想法,都可以很容易地纳入任何公司的设备采购规范中,以帮助缓解与电压暂降有关的问题:
设备制造商应向客户提供设备的电压暂降穿越能力曲线(类似前文所示曲线),以便对设备进行初步评估。
客户应开始要求提供这类曲线,以便能够正确评估设备。
采购新设备的公司应建立一套对设备重要性进行评级的程序。
如果设备具有关键性质,公司必须确保在采购时已包含足够的暂降穿越能力。
如果设备并不重要,或不会对制造造成重大扰乱,也不会危及工厂和人员安全,则未必有理由配置电压暂降防护。
设备至少应能够穿越最低电压为额定值
70%的电压暂降(ITI 曲线)。相比“暂降至额定值
90%或更低”,发生“暂降至额定值70%或更低”的相对概率要小得多。对于短持续时间电压暂降,更理想的穿越能力是
50%,正如半导体行业标准SEMI F-47(参考文献 17)所规定的那样。
当我们考虑在更高供电层级上采取方案时,这些方案通常会变得更昂贵。如果在设备规范阶段无法获得所需的穿越能力,则可能可以对设备控制部分应用不间断电源(UPS)系统或其他类型的电能调节装置。
这种做法适用于这样的情况:机器本体本身能够承受暂降或中断,但控制系统会自动将其停机。在图 3.12 的第 3 层,需要某种能够在短时间内支撑负载的后备电源。
第 4 层则表示对公用电力系统所做的改造,用以显著减少暂降和中断的次数。

Figure 3.12 Approaches for voltage sag ride-through.
3.4 终端用户层面的解决方案(Solutions at the End-User Level)
用于提高某个工艺过程或设施可靠性与性能的解决方案,可以在许多不同层级上实施。应根据工艺的具体要求评估可用的不同技术,以确定提升整体电压暂降性能的最优方案。
如图 3.12 所示,这些方案可以按以下不同应用层级进行讨论:
小负载保护(例如小于
5 kVA)。这通常涉及设备控制部分或小型独立机器的保护,很多情况下属于需要保护的单相负载。单台设备或设备组保护(容量可达约
300 kVA)。这通常意味着在设施内部应用电能调节技术,保护那些可方便集中在一起的关键设备。由于通常并非设施内所有负载都需要保护,这是一种较经济的方法,尤其适用于在设施设计阶段就考虑关键负载保护需求的场景。在低压等级对大负载组或整个设施进行保护。有时设施中较大部分都属于关键负载或需要保护,因此在一个方便位置(通常为进线处)保护大负载组是合理的;当需要保护大负载组时,也有若干新技术可供选择。
在中压等级或供电系统侧进行保护。如果整个设施都需要保护,或需要系统性改善电能质量,可考虑中压层级方案。
这些类别中的容量范围划分具有相当的任意性,而且其中许多技术都可应用于更宽的容量范围。下文将介绍主要可用技术以及它们可应用的层级。
3.4.1 铁磁谐振变压器(Ferroresonant transformers)
铁磁谐振变压器(ferroresonant transformers),也称恒压变压器(constant-voltage transformers, CVTs),可以应对大多数电压暂降工况(见图 3.13)。CVT 对恒定、小功率负载特别有吸引力。
变动负载,尤其是具有较大涌流的负载,由于输出侧调谐电路的存在,会给 CVT 带来更多问题。铁磁谐振变压器本质上是 1:1 变压器,其工作点被激励在磁化曲线较高的饱和区,从而使输出电压不显著受输入电压变化影响。
图 3.14 给出了典型铁磁谐振变压器的原理电路图。图 3.15 给出了由一台 120-VA 铁磁谐振变压器供电的过程控制器在电压暂降穿越能力方面的改善情况。
使用 CVT 后,该过程控制器可穿越最低降至额定值 30% 的电压暂降;而未使用时只能到 82%。注意其穿越能力在某一水平上保持不变。
其原因在于该过程控制器功率需求很小,仅 15 VA。铁磁谐振变压器的选型容量应显著大于负载容量。图 3.16 显示了一家制造商给出的关系:以铁磁谐振变压器负载率为横轴、允许输入电压暂降(占额定电压百分比,且保证 CVT 输出至少保持 90% 电压)为纵轴。
当负载率为 25% 时,允许的输入电压暂降为额定值的 30%,这意味着只要输入电压高于 30%,CVT 输出就能保持在正常电压的 90% 以上。这一点很重要,因为在电压暂降条件下,工厂电压很少会低于额定值的 30%。
随着负载率增加,相应的穿越能力会降低。当铁磁谐振变压器过载(例如负载率 150%)时,电压将塌落到零。

Figure 3.13 Examples of commercially available constant-voltage transformers (CVTs) (www.sola-hevi-duty.com).
Figure 3.14 Schematic of ferroresonant constant-voltage transformer.

Figure 3.15 Voltage sag improvement with ferroresonant transformer.
Figure 3.16 Voltage sag versus ferroresonant transformer loading.
3.4.2 磁合成器(Magnetic synthesizers)
磁合成器(magnetic synthesizers)的工作原理与 CVT 类似,但它是三相设备,并利用三相磁路来为三相负载提供更好的电压暂降支撑与稳压能力。其适用容量范围约为 15~200 kVA,通常用于较大型计算机系统的工艺负载,这类负载往往对电压暂降或稳态电压变化较为敏感。
图 3.17 给出了该过程的框图。能量传输和线路隔离通过非线性扼流圈(nonlinear chokes)实现。这消除了诸如线路噪声之类的问题。
交流输出波形由饱和变压器产生的离散电压脉冲组合而成。波形能量以电流和电压的形式储存在饱和变压器和电容器中。这种储能能力使其能够输出谐波畸变很小的洁净波形。
最后,三相电力通过之字形(zigzag)变压器供给负载。图 3.18 给出了一家制造商标称的磁合成器电压暂降穿越能力,并与 CBEMA 曲线进行了比较。

Figure 3.17 Block diagram of magnetic synthesizer.
Figure 3.18 Magnetic synthesizer voltage sag ride-through capability.
3.4.3 有源串联补偿器(Active series compensators)
电力电子技术的进步以及这些装置新拓扑的发展,为关键负载提供电压暂降穿越支撑带来了新的选择。其中一个重要的新选择是:在电压暂降期间,通过串联注入电压到剩余电压上,从而提升电压的装置。
这类装置称为有源串联补偿装置(active series compensation devices)。其容量范围从小型单相装置(1~5 kVA)到可用于中压系统的超大型装置(2 MVA 及以上)。
图 3.19 是一个小型单相补偿器示例,可用于为单相负载提供穿越支撑。图 3.20 给出了用于实现该补偿的电力电子单线图。
当检测到输入电压扰动时,一个快速开关会断开,电力随后经串联连接的电子电路供给。该电路在输入电压上叠加或减去一个电压信号,从而使输出电压在扰动期间保持在规定容差范围内。
该开关动作非常快,使负载所见扰动持续时间小于四分之一周波。这一速度足以避免几乎所有敏感负载出现问题。该电路可提供约 50% 的电压提升(boosting)能力,这对几乎所有电压暂降工况都足够。
Figure 3.19 Example of active series compensator for single-phase loads up to about 5 kVA (www.softswitch.com).

Figure 3.20 Topology illustrating the operation of the active series compensator.
3.4.4 在线式 UPS(On-line UPS)
图 3.21 给出了在线式 UPS 的典型结构。在这种设计中,负载始终通过 UPS 供电。输入交流电首先被整流为直流电,用于给电池组充电。
然后再将该直流电逆变回交流电,为负载供电。如果输入交流电失效,逆变器将由电池供电并继续向负载供电。除了在停电时提供穿越能力外,在线式 UPS 还可以把关键负载与所有电力线路扰动高度隔离开来。
然而,在线运行方式会增加损耗,并且对许多负载的保护而言可能并无必要。

Figure 3.21 On-line UPS.
3.4.5 备用式 UPS(Standby UPS)
备用电源(图 3.22)有时也称为离线式 UPS(off-line UPS)。这是因为在检测到扰动并由开关将负载切换到电池支撑的逆变器之前,设备一直由正常线路电源供电。
从正常电源切换到电池支撑逆变器的转移时间非常重要。CBEMA 曲线表明,对于重视供电连续性的设备制造商而言,8 ms 是可承受中断穿越时间的下限。
因此,4 ms 的切换时间可以保证关键负载运行的连续性。与在线式 UPS 不同,备用电源通常不提供暂态保护或电压调节功能。
这是零售渠道常见通用型 UPS 的最常见结构,通常用于保护小型计算机负载。UPS 的规格参数通常包括视在功率容量(kVA)、动态与静态电压调节能力、输入电流与输出电压的谐波畸变、浪涌保护以及噪声衰减能力。
规格书应明确这些参数成立的测试条件,或者由供应商提供相应测试条件。
3.4.6 混合式 UPS(Hybrid UPS)
混合式 UPS(图 3.23)在设计上与备用式 UPS 类似,但在 UPS 输出端使用了电压调节器。这样可在从正常电源切换到 UPS 电源时,对负载提供电压调节与瞬时穿越支持。

Figure 3.22 Standby UPS.
Figure 3.23 Hybrid UPS.
3.4.7 电动机-发电机组(Motor-generator sets)
电动机-发电机组(M-G sets)有多种容量和结构形式。这是一项成熟技术,至今仍可用于将关键负载与电力系统中的暂降和中断隔离开来。
其概念非常简单,如图 3.24 所示。由线路供电的电动机驱动一台发电机,而发电机向负载供电。同轴飞轮可提供更大的转动惯量,以延长穿越时间。
当线路发生扰动时,电机与飞轮的惯性能够在数秒内维持供电。这种布置还可用于把敏感负载与其他类别的扰动隔离开,例如谐波畸变和开关暂态。
虽然概念简单,但 M-G 机组对某些类型负载存在缺点:
机组存在损耗,尽管损耗不一定比这里介绍的其他技术更大。
对某些安装场景而言,噪声和维护可能成为问题。
中断期间随着机组减速,频率和电压会下降。
这对某些负载可能并不适用。
另一类 M-G 机组采用一种称为 written-pole motor 的特殊同步发电机,可在机组减速时仍产生恒定 60 Hz 频率。它通过不断改变转子磁极的极性来维持恒定输出。
因此,每一转的极数都可能与上一转不同。只要转子转速保持在 3150~3600 rpm,输出就能维持恒定。一旦电源切断,飞轮惯性会使发电机转子继续保持在高于 3150 rpm 的速度旋转。
在满载条件下,转子重量通常可提供足够惯性,使其保持足够高的转速来产生 60 Hz 约 15 s。另一种在提取能量期间补偿频率和电压下降的方法,是将发电机输出整流后再馈入逆变器。
这样可以提取更多能量,但也会引入损耗和成本。

Figure 3.24 Block diagram of typical M-G set with flywheel.
3.4.8 飞轮储能系统(Flywheel energy storage systems)
M-G 机组只是利用飞轮储能的一种方式。现代飞轮储能系统使用高速飞轮和电力电子技术,可实现 10 s 到 2 min 的暂降与中断穿越。
图 3.25 给出了一个用于储能系统的飞轮示例。M-G 机组通常在开放环境中运行,会受到空气动力摩擦损耗影响;而这类飞轮在真空环境下运行,并采用磁轴承,从而显著降低待机损耗。
钢制转子设计的转速可约为 10,000 rpm,而复合材料转子设计的转速可高得多。由于储能量与转速平方成正比,因此可以在很小空间内储存大量能量。
转子同时充当一体化的储能装置、电动机和发电机。在储能时,转子作为电动机被加速到额定转速。在需要能量时,转子和电枢作为发电机工作。
当能量被提取、转子减速时,控制系统会自动提高励磁,以补偿电压下降。这种高速飞轮储能模块可替代前文任一种 UPS 方案中的电池。

Figure 3.25 Cutaway view of an integrated motor, gen- erator, and flywheel used for energy storage systems. (Courtesy of Active Power, Inc.)
3.4.9 超导磁储能装置(Superconducting magnetic energy storage, SMES)
SMES 装置可用于缓解电压暂降和短暂中断(参考文献 2)。SMES 系统中的储能来自流经超导磁体电流所存储的电能。由于线圈无损,这部分能量几乎可以瞬时释放。
通过电压调节器和逆变器组,该能量可在不足 1 个周波内注入受保护电力系统,以补偿电压暂降事件中的电压缺失部分。
与基于电池的 UPS 系统相比,SMES 系统有若干优点:
在相同储能和供电能力下,SMES 系统占地面积远小于电池系统(参考文献 13)。
存储能量可以更快地输送到受保护系统。
SMES 系统的放电和充电循环次数几乎不受限制。
放电与充电循环可执行数千次,而不会使超导磁体性能退化。
从完全放电状态恢复的充电周期通常小于 90 s。图 3.26 给出了常见系统的功能框图。该系统由超导磁体、电压调节器、电容器组、DC-DC 变换器、直流断路器、逆变器模块、检测与控制设备以及串联注入变压器构成。
超导磁体由铌钛(NbTi)导体制成,并由液氦冷却至约 4.2 K。低温制冷系统基于两级再冷凝器(two-stage recondenser)。
磁体电引线通过高温超导体(HTS)连接到电压调节器和控制系统。该磁体典型储能量约为 3 MJ。

Figure 3.26 Typical power quality–voltage regulator (PQ-VR) functional block diagram. (Courtesy of American Superconductor, Inc.)
在图示示例系统中,从 SMES 释放的能量先经过电流-电压变换器,为一个 14 微法(原文标注 mF)的直流电容器组充电至 2500 Vdc。电压调节器将直流电压保持在额定值,同时也为 SMES 提供保护控制。
DC-DC 变换器将直流电压降至 750 Vdc。逆变器子系统模块由 6 个单相逆变桥组成。每相并联两套额定 450 A rms 的 IGBT 逆变桥,因此每相总额定值为 900 A。
逆变器的开关方案基于脉宽调制(PWM)方法,其中载波信号为频率 4 kHz 的正弦-三角波(sine-triangle)信号(参考文献 15)。典型 SMES 系统可为最大 8 MVA 的负载提供保护,适用于最低至 0.25 pu 的电压暂降。
根据负载容量不同,它可提供最长约 10 s 的电压暂降穿越能力。图 3.27 给出了一个示例:电网电压发生了约 7 个周波、幅值为 0.6 pu 的电压暂降。
受保护负载端电压几乎保持在故障前数值不变。

Figure 3.27 SMES-based system providing ride-through during voltage sag event.
3.4.10 静态切换开关与快速切换开关(Static transfer switches and fast transfer switches)
对于可能对电压暂降敏感的整个设施,有多种可选保护方案。其中包括动态电压恢复器(DVR)以及 UPS 系统,这些系统采用与前述方案类似的技术,但应用在中压等级。
另一种可应用于低压或中压等级的方案是自动切换开关(automatic transfer switch)。自动切换开关可以采用多种技术实现,从常规断路器到静态开关。
常规切换开关可在数秒内将负载从主电源切换到备用电源。采用真空断路器技术的快速切换开关可实现约 2 个电气周波的切换。
这已经快到足以保护许多敏感负载。静态开关则使用电力电子开关,在约四分之一电气周波内完成切换。切换开关的结构如图 3.28 所示。
图 3.29 给出了一个中压安装实例。切换开关用于保护敏感负载时,其有效性最重要的前提是设施必须有两路相互独立的电源。例如,如果两路电源都来自同一变电站母线,那么当供电系统某处发生故障时,它们都会暴露在同样的电压暂降之下。
如果影响该设施的事件中有相当比例是由输电系统故障引起的,那么快速切换开关对设施内设备的保护作用可能很有限。

Figure 3.28 Configuration of a static transfer switch used to switch between a primary supply and a backup supply in the event of a disturbance. The controls would switch back to the primary supply after normal power is restored.

Figure 3.29 Example of a static transfer switch application at medium voltage.
3.5 不同穿越方案的经济性评估(Evaluating the Economics of Different Ride-Through Alternatives)
用于寻找改善电压暂降性能最佳方案的经济性评估流程包括以下步骤:
描述系统电能质量性能。
估算与电能质量波动相关的成本。
从成本和有效性角度描述各解决方案备选项。
执行比较性经济分析。
我们已经给出了用于表征预期电压暂降性能的方法,并概述了可用于改善设施性能的主要技术。现在,我们将重点放在评估不同方案的经济性上。
3.5.1 估算电压暂降事件的成本(Estimating the costs for the voltage sag events)
与暂降事件相关的成本差异可能非常大,从几乎为零到每次事件数百万美元不等。成本不仅会因行业类型和具体设施不同而变化,也会随市场条件变化。
如果终端产品供不应求、且难以弥补损失产量,则通常会出现更高成本。并非所有成本都容易量化,也并非都能真实反映避免电压暂降事件后果的紧迫性。
电能质量扰动的成本主要可归入三大类:
产品相关损失,例如产品和材料损失、产能损失、处置费用以及库存需求增加。
人工相关损失,例如人员待工、加班、清理和维修。
附带成本,例如设备损坏、机会损失成本以及延迟交付造成的罚金。
围绕这三类开展分析,有助于建立一份关于电能质量扰动全部成本与节省项的详细清单。还可以参考 IEEE 1346-1998 附录 A(参考文献 18),其中对确定电能质量扰动成本时应考虑的因素有更详细说明。
成本通常会随电能质量扰动严重程度(幅值与持续时间)而变化。这种关系通常可用一个“加权因子矩阵(matrix of weighting factors)”来定义。
加权因子通常以一次短暂中断(momentary interruption)的成本作为基准来建立。通常,对于未采用某种储能技术专门保护的负载或工艺,一次短暂中断会导致其运行中断。
电压暂降和其他电能质量波动所造成的影响,总是这一“完全停机影响”的某个比例。如果一次暂降至 40% 的事件会造成相当于短暂中断 80% 的经济影响,那么该 40% 暂降的加权因子就是 0.8。
类似地,如果一次暂降至 75% 的事件仅导致相当于中断成本 10% 的损失,则其加权因子为 0.1。当把加权因子应用到某个事件后,该事件成本就可以表示为“短暂中断成本”的标幺值(per unit)。
然后可将加权后的事件求和,总和即为所有事件的总成本,并以“等效短暂中断次数(equivalent momentary interruptions)”表示。表 3.3 给出了某项研究中使用的一组加权因子示例。
这些加权因子还可以进一步扩展,用以区分“影响三相全部”的暂降与“仅影响一相或两相”的暂降。表 3.4 将加权因子与预期性能结合起来,用于确定与电压暂降和中断相关的年度总成本。
其结果为:总成本相当于一次中断成本的 16.9 倍。如果一次中断的成本为40,000,那么与电压暂降和中断相关的总成本将达到每年 676,000(也可参见第 8 章中的其他成本评估方法)。

Table 3.3 Example of Weighting Factors for Different Voltage Sag Magnitudes
Table 3.4 Example of Combining the Weighting Factors with Expected Voltage Sag Performance to Determine the Total Costs of Power Quality Variations
3.5.2 描述方案备选项的成本与有效性(Characterizing the cost and effectiveness for solution alternatives)
每种解决方案技术都需要从成本和有效性两个方面进行表征。从广义上看,方案成本应包括初始采购与安装费用、运行与维护费用,以及任何处置和/或残值(salvage value)因素。
完整评估还应包括一些不那么显见的成本,例如房地产或空间相关费用,以及税务因素。额外空间需求的成本可以折算为空间租金,并与其他年度运行费用一起计入。
税务因素可能包含多个组成部分,其净收益或净成本也可以并入其他年度运行费用。表 3.5 给出了若干用于改善电压暂降和中断性能的通用技术的初始成本与年度运行成本示例。
这些成本仅用于示例,不应视为任何特定产品的代表性价格。除成本之外,还需要用“可实现的性能改善程度”来量化各方案的有效性。
方案有效性与电能质量成本类似,通常也会随电能质量扰动严重程度而变化。这种关系可由“避免的暂降百分比(% sags avoided)”矩阵来定义。
表 3.6 用表 3.5 中示例技术为例,说明了这一概念在典型工业应用中的表现形式。

Table 3.5 Example Costs for Different Types of Power Quality Improvement Technologies

Table 3.6 Effectiveness of the Power Quality Improvement Options for a Particular Example Case*
3.5.3 进行比较性经济分析(Performing comparative economic analysis)
对不同性能改进方案进行比较的过程,需要确定每个备选方案的年度总成本。该年度总成本同时包括:与电压暂降相关的成本(注意,方案通常并不能完全消除这部分成本)以及实施该方案的年化成本。
目标是使这些年度成本总和最小化(即“电能质量成本 + 方案成本”)。从“年度总成本(年度电能质量成本 + 年度电能质量改进方案成本)”角度比较不同电能质量解决方案,可识别出那些成本更低、值得进一步详细研究的方案。
在比较分析中,通常会把“不采取措施(do-nothing)”方案纳入,并一般将其作为基准工况(base case)。不采取措施方案的年度电能质量改进成本为零,但其年度电能质量成本最高。
许多成本项目(电能质量成本以及运行维护成本)天然就是年度成本。而购买和安装各种方案技术所对应的成本则是一次性前期成本,可依据适当利率以及假设寿命或评估周期进行年化处理。
图 3.30 给出了一个典型工业设施的此类分析示例。该设施总负载为 5 MW,但为避免生产中断,实际上只需保护约 2 MW 负载。
其电压暂降性能采用表 3.4 中给出的数据。一次中断的成本为每次 $40,000,电压暂降成本则基于前述加权因子确定。
对表 3.6 给出的六种方案进行了分析,并给出了年成本结果。年化成本按 15 年寿命和 10% 利率计算。值得注意的是,在该示例中所有选项都降低了年度总成本。
换言之,在假定的利率和寿命条件下,与现有工况相比,这些选项中的任一方案都会给该设施带来净收益。同样值得注意的是,本例中的最佳方案涉及在公用系统侧配置设备(快速切换开关,fast transfer switch)。
不过这有一个重要前提:必须有备用馈线可用,并且除设备与运行费用外,公用事业单位不会因提供该备用馈线接入而额外收费。更常见的情况是,方案会在设施内部实施;在这种情况下,动态暂降校正器(dynamic sag corrector)或基于飞轮的备用电源,可能是保护这 2 MW 敏感负载的合理选择。
在这个例子中,仅使用 CVT 保护控制部分并不是最佳方案,因为机器本身也对电压暂降敏感。

Figure 3.30 Example of comparing solution alternatives with the base case using total annualized costs.
3.6 电动机启动暂降(Motor-Starting Sags)
电动机在启动时会产生一个不利影响:其电流会达到满载电流的数倍。这一大电流流经系统阻抗时会引起电压暂降,可能导致照明变暗、接触器释放以及敏感设备受扰。
而且由于启动位移因数(starting displacement factor)极低(通常仅 15%~30%),这种情况会进一步恶化。电动机加速到额定转速所需时间会随着暂降幅值增大而增加,而过大的暂降甚至可能使电动机无法成功启动。
如图 3.31 所示,电动机启动暂降可持续数秒之久。

Figure 3.31 Typical motor-starting voltage sag.
3.6.1 电动机启动方法(Motor-starting methods)
将电动机一步直接加压(全电压启动,full-voltage starting)成本低,并且可获得最快加速。除非由此造成的电压暂降或机械应力过大,否则这是首选方法。
自耦变压器起动器(autotransformer starters)采用两台开口三角形(open delta)连接的自耦变压器。抽头可在启动期间提供相当于系统电压 80%、65% 或 50% 的电动机端电压。
线路电流和启动转矩都与施加在电动机上的电压平方成正比。因此,50% 抽头仅能提供全电压启动电流和转矩的 25%。
通常选取能够提供所需启动转矩的最低抽头档位。电阻起动器与电抗起动器(resistance and reactance starters)会在初始阶段在电动机回路中串入阻抗。
经过一段延时后,该阻抗被短接切除。起动电阻可分多级依次短接切除;起动电抗器通常一次性短接切除。线路电流和启动转矩与施加在电动机上的电压成正比。
因此,在相同启动电压下,这类起动器相较于自耦变压器起动器会从线路吸取更大电流,但可提供更高启动转矩。电抗器通常设有 50%、45% 和 37.5% 抽头。
半绕组起动器(part-winding starters)对于双电压等级电动机(如 220/440 V 或 230/460 V)很有吸引力。双电压等级电动机的定子由两组绕组构成:在低电压等级下两组并联连接,在高电压等级下两组串联连接。
当在低电压等级下采用半绕组起动器运行时,初始时仅给一组绕组加电。这会将启动电流和启动转矩限制为“两组绕组同时加电”时对应数值的 50%。
三角-星形起动器(delta-wye starters)在启动时将定子接成星形,经过一段延时后再将绕组改接为三角形。星形连接会把启动电压降低到系统线电压(line-line voltage)的 57%。
启动电流和启动转矩则降为全电压启动时数值的 33%。
3.6.2 估算全电压启动时的暂降严重程度(Estimating the sag severity during full-voltage starting)
如图 3.31 所示,感应电动机启动会造成电压陡降,随后逐渐恢复。
若采用全电压启动,则暂降电压(以系统额定电压的标幺值表示)可按下式计算:
其中:
V(pu) = 实际系统电压(以额定值标幺表示)
kVA_{LR} = 电动机堵转(locked rotor)kVA
kVASC = 电动机接入点系统短路容量(short-circuit kVA)
图 3.32 给出了在采用典型系统阻抗和电动机特性的情况下,计算“暂降至额定电压 90\%”时的结果示例。如果计算结果高于受影响设备允许的最低稳态电压,那么全电压启动是可接受的。
否则,就必须将“暂降幅值-持续时间特性”与受影响设备的电压耐受包络线(voltage tolerance envelope)进行比较。所需计算相当复杂,最好交由电动机启动分析程序或通用暂态分析计算机程序完成。
进行仿真通常需要以下数据:
标准感应电动机等效电路参数值:
R1、X1、R2、X2和XM电动机极数以及额定转速(或转差率,slip)
电动机及其负载的
WK^2(转动惯量常数)数值电动机负载的“转矩-转速”特性

Figure 3.32 Typical motor versus transformer size for full-voltage starting sags of 90 percent.
3.7 公用系统故障切除问题(Utility System Fault-Clearing Issues)
公用馈线设计与故障切除实践,对配电接入负载处的电压暂降与中断性能有很大影响(参考文献 12)。下面将讨论改善这类性能的方法。
公用事业单位持续降低系统故障数量与故障严重程度,基本有两类选择:
预防故障。
修改故障切除实践。
公用事业单位从故障预防活动中可以获得重要收益。这些活动不仅能提高客户满意度,也能防止电力系统设备发生代价高昂的损坏。故障预防活动包括修剪树木、加装线路避雷器(line arresters)、清洗绝缘子以及加装防动物装置(animal guards)。
不能指望公用线路上的绝缘经受住所有雷击。然而,任何对雷击诱发故障表现出高易感性的线路,都应进行调查分析。在输电线路上,可以分析屏蔽(shielding)在降低直击雷方面的有效性。
杆塔接地电阻(tower footing resistance)是静线向相线反击闪络(backflashover)的重要影响因素。如果杆塔接地电阻较高,雷击浪涌能量将不能被大地快速吸收。
在配电馈线上,屏蔽也可能是一种可选措施,沿线频繁布置避雷器同样也是一种办法。当然,架空配电馈线的一个主要问题是风暴会把树枝吹到线路上。
在植被生长较快的地区,保持树木得到适当修剪是一项艰巨任务。改进故障切除实践的措施可以包括增加线路重合器(line reclosers)、取消快速跳闸(fast tripping)、增加环网方案(loop schemes)以及修改馈线设计。
这些做法可能减少短暂中断和电压暂降的次数和/或持续时间,但公用系统故障不可能被完全消除。
3.7.1 过流配合原理(Overcurrent coordination principles)
理解公用系统在故障条件下的运行方式非常重要。故障电流切除与供电恢复过程存在一定物理限制。这对那些期望在此类事件中不中断运行的负载提出了某些最低要求。
此外,在改善电能质量方面,有些事情在公用系统侧比在负载侧更容易做得更好。因此,下面关于公用系统故障切除的讨论将同时兼顾终端用户(或负载设备设计者)和公用系统工程师的视角。
电力系统中的故障有两类基本类型:
暂时性(瞬时性)故障(Transient / temporary faults)。
这类故障例如架空线路闪络,不会对系统绝缘造成永久损伤。只要故障电弧熄灭,就可以恢复供电。自动开关设备可在数秒内完成这一过程。某些暂时性故障会自行清除。
永久性故障(Permanent faults)。
这类故障由绝缘系统某部分发生物理损坏所致,需要线路抢修人员介入修复。对终端用户的影响通常是持续数分钟到数小时的停电。公用系统故障切除过程的首要目标(除人员安全外)是限制配电系统损害。
因此,故障检测与故障电流切除必须以尽可能高的速度完成,同时又不能对正常暂态事件发生误动作。
通常最令人担心的两类损害是:
导线和套管(bushings)的电弧损伤(arcing damage)
变电站变压器的越故障(through-fault)损伤,其中绕组会因过大电动力而移位,导致重大故障
径向配电系统(radial distribution system)的设计目标是:清除某一故障时只需一个故障中断装置动作。对于永久性故障,同一个装置或另一个装置还要执行馈线分段(sectionalize)功能。
也就是说,要隔离故障区段,以便恢复由健康区段供电的其他负载。对这一过程的统筹安排称为过流保护装置配合(coordination of the overcurrent protection devices)。
这一概念虽然简单,但涉及装置的某些行为可能相当复杂。值得注意的是,几乎整个过程都由仅具备本地智能(local intelligence)的自治装置自动完成。
过流保护装置沿馈线串联布置。在永久性故障配合中,沿馈线从末端向变电站方向移动时,这些装置的动作速度应逐步变慢。这有助于确保馈线正确分段,只隔离故障区段。
然而,对于暂时性故障,特别是在采用保熔丝(fuse saving)策略时,这一原则常常会被打破。
馈线上过流保护装置的典型层级为:
变电站内馈线断路器(feeder breaker in the substation)。
这是由独立继电器控制、通常具备约 40 kA 开断能力的断路器。当可用故障电流低于 20 kA 时,也常见用重合器承担这一功能。
安装于馈线中部电杆上的线路重合器(line reclosers mounted on poles at midfeeder)。
最简单的类型是自包含式,采用液压操作的定时、开断和重合机构;其他类型则配有独立电子控制器。
主馈线许多支线(lateral taps)上的熔断器(fuses)。
下面开始讨论这些装置在布置和运行方面与电能质量相关的问题。
3.7.2 熔断器(Fuses)
系统中最基础的过流保护元件是熔断器。熔断器价格相对低廉,而且基本免维护。因此,在大多数公用配电系统中,它们通常被大量用于保护单台变压器和馈线分支(有时称 laterals 或 lateral branches)。
图 3.33 给出了一个典型的架空线路熔断器跌落式开关(fused cutout)。熔断器的根本作用是在永久性故障时动作,并把故障区段从完好馈线部分中隔离(分段)。
其布置原则是尽可能使受扰动的馈线区段最小化。熔断器通过熔化熔体(fuse element)来检测过电流,熔体通常由锡或银等金属制成。
这会引发某种电弧过程,并最终导致电流开断。
电力系统中使用的熔断器技术主要有两类:
喷射式熔断器(expulsion fuses,如图 3.33)
限流式熔断器(current-limiting fuses,见
3.7.11)
两者的本质区别在于熄弧方式。这也使两类熔断器具有不同的电能质量特性。喷射式熔断器在带烧蚀涂层(ablative coating)的管内形成电弧。
这会产生高压气体,将电弧等离子体和熔体残余物从跌落式开关底部喷出,常伴有类似枪响的巨大声响。这种过程会冷却电弧,使其在交流电流自然过零后不再重燃。
对于大故障电流,这一过程可短至半个周波;对较小故障电流,则可能持续若干周波。这决定了负载侧所观测到的电压暂降持续时间。喷射式熔断器明显比限流式熔断器便宜。
限流式熔断器则在封闭环境中耗散电弧能量,通常是通过熔化绝缘管中的特殊砂料实现。这一过程实际上会很快熄灭电弧,使电流在自然过零前就被迫降为零。
这可能会对电压暂降特性带来某些有利影响(见图 3.45)。由于熔断器基于一段金属受热累积至熔点后熔化的机理,因此在不同故障电流水平下,其动作时间会不同。
随着电流水平增大,动作时间会缩短,这赋予熔断器独特的反时限电流-时间特性(inverse time-current characteristic, TCC),如图 3.34 所示。为实现与熔断器的全范围配合,配电系统中所有其他过流保护装置都必须采用这一基本特性形状。
熔断器 TCC 通常以两条曲线之间的带状区域表示,如图所示。最左侧边界表示最小熔化时间(minimum melting time),而最右侧边界表示不同电流水平下的最大切除时间(maximum clearing time)。
与熔断器特性配合、且与电能质量相关的若干要点如下:
如果电力公司在暂时性故障中采用保熔丝策略,则与其配合的上级故障中断装置的 TCC 必须位于最小熔化曲线左侧。
对于永久性故障,配合装置的 TCC 必须位于切除曲线右侧,以便让熔断器先熔断并切除故障;否则将导致更多其他用户中断。
重复故障电流、重合闸涌流以及雷击电流会损伤熔体,通常会使 TCC 左移,从而导致熔断器下游客户发生非预期中断。
对于动作时间小于
0.1 s的大电流值,很难保证上游机械式故障中断装置一定能够成功“保住熔断器”(save the fuse)。

Figure 3.33 Typical utility fused cutout with expulsion fuse. (Courtesy of Cooper Power Systems.)

Figure 3.34 The inverse time-current characteristic of a fuse that dictates the shape of the characteristic of all other devices for series overcurrent coordination.
3.7.3 重合闸(Reclosing)
由于架空线路上的大多数故障都是暂时性的,在电流被切断后数个周波内即可成功恢复供电。因此,大多数自动断路器被设计为在需要时快速连续重合 2 或 3 次。
这种多次动作设计既是为了配合各种分段方案运行,也是为了给某些持续时间稍长的暂时性故障第二次清除机会。公用配电系统中有一种专门用于故障开断和重合闸功能、名称也恰如其分的专用断路器,称为重合器(recloser)。
这类装置在执行故障开断与重合闸方面具有较好性能。绝大多数故障会在第一次动作时被清除。图 3.35 给出了一个典型单相重合器,图 3.36 和图 3.37 则给出了两种常见的三相设计。
这些装置通常安装在架空公用线路的电杆上,当然也有台架式(pad-mounted)版本。油绝缘设计最常见,但六氟化硫(SF6)绝缘以及封装式固体介质绝缘设计也很常见。
这些装置可出现在配电馈线沿线许多位置,有时也会装在变电站内。它们通常安装在暂时性故障频繁发生区段的首端。不过,只要需要一个方便、低成本的一次侧断路器,它们几乎可以安装在任何地方。
由于重合器被设计用于保熔丝(快速跳闸)应用,它们是公用系统中动作最快的机械式故障中断装置之一。虽然其典型额定最快动作时间一般为 3~6 周波,但电能质量监测器已经记录到许多短至 1.5 周波的中断实例。
这有利于限制暂降持续时间。在不采用快速跳闸时,重合器控制器通常会将动作延时到 6 周波以上,以便给下游熔断器留出切除时间。
重合闸在北美公用系统中非常普遍。在雷电发生率较低的地区,电力公司可能只重合一次,因为它们认为大多数故障将是永久性故障。在多雷地区,常见做法是最多尝试 4 次故障清除。
图 3.38 展示了四次动作重合器(four-shot reclosers)中最常见的两种序列:
一次快速动作(fast),三次延时动作(delayed)
两次快速动作,两次延时动作
关于快速动作和延时动作的更详细说明,见 3.7.4。重合器各次动作之间的重合间隔通常比较统一。早期液压式重合器的重合间隔受限于约 1~2 s,尽管现代电子控制重合器可设为任意值,许多电力公司仍保留这一设置。
某些类型重合器的首次重合间隔常被设为瞬时重合(instantaneous reclose),这会使重合在 12~30 周波(0.2~0.5 s)内完成。这样做是为了缩短中断时间并改善电能质量。
不过,这也会带来一些冲突,例如与分布式发电(DG)解列时间之间的协调问题(见 9.5.2)。变电站断路器常采用另一种重合闸序列风格,如图 3.39 所示。
这源于继电保护技术演进路径的不同。其重合时间是从第一次动作的第一次跳闸信号开始计时的。因此,常见的 “0-15-45” 动作序列在第一次动作时基本会尽可能快地重合,而后两次动作之间的间隔大约分别为 15 s 和 30 s。
尽管术语可能不同,现代断路器和重合器都可以被整定为相同的动作序列,以满足负载的电能质量要求。电力公司通常根据成本或建设标准在两类技术中择一采用。
对于以地下电缆为主的配电回路,如果系统中没有相当比例的架空线路暴露于树障或雷击风险之下,那么在线路上配置自动重合器通常意义不大。

Figure 3.35 Typical pole-mounted, oil-insulated single-phase line recloser. (Courtesy of Cooper Power Systems.)
Figure 3.36 Typical standard three-phase oil-insulated line recloser with vacuum interrupters. (Courtesy of Cooper Power Systems.)

Figure 3.37 Newer three-phase line recloser with vacuum interrupters encapsulated in solid dielectric insulation. (Courtesy of Cooper Power Systems.)

Figure 3.38 Common reclosing sequences for line reclosers in use in the United States.
Figure 3.39 A common reclosing sequence for substation breakers in the United States.
3.7.4 保熔丝(Fuse saving)
理想情况下,公用系统工程师希望避免在暂时性故障中无谓地熔断熔断器,因为这会导致必须派线路人员前往更换。线路重合器的设计初衷之一就是帮助“保住熔断器”。
变电站断路器也可以通过采用瞬时接地继电(instantaneous ground relaying)来实现同样目的。其基本思想是:让机械式开断装置在第一次动作时非常快速地动作,使其在下游熔断器来得及熔化之前先完成切除。
当该装置重新合闸后,在大多数情况下供电即可完全恢复,无需人工干预。对客户而言,唯一不便通常只是一次轻微闪断(slight blink)。
这称为装置的快速动作(fast operation),或瞬时跳闸(instantaneous trip)。
如果重合后故障仍然存在,常见的处理方式有两种:
切换到慢速(或延时)跳闸特性。
这往往是变电站断路器唯一的选择;它们通常只在瞬时跳闸模式下动作一次。该策略假定故障此时已属于永久性故障,切换到延时动作可以给下游熔断器留出动作与切除时间,以通过隔离故障区段来清除故障。
再尝试一次快速动作。
当运行经验表明:相当比例的暂时性故障需要“第二次机会”才能在保熔丝前提下被清除时,会采用这一策略。某些线路结构和电压等级下,雷击引发的电弧更可能重燃,需要第二次机会清除。另外,一定比例的树障故障在第二次冲击后也会烧断脱离(burn free)。由于电能质量投诉,一些电力公司已在特定区域放弃保熔丝策略。
此时会取消快速(瞬时)跳闸,使断路器和重合器只保留延时动作(见 3.7.6)。
3.7.5 可靠性(Reliability)
在公用系统语境中,“可靠性(reliability)”通常是指终端用户在较长一段时间内完全失去供电的时长(即持续中断,sustained interruption)。不同电力公司对“持续中断”的定义并不一致,通常在 1~5 min 之间。
这也是许多电力公司所说的“停电(outage)”。当前电能质量标准工作趋势是将“持续超过 1 min 的任何供电中断”称为持续中断(见第 2 章)。
无论如何,可靠性都受到系统中永久性故障的影响,因为这些故障必须修复后才能恢复供电。当然,许多工业终端用户对“可靠性”的理解不同,因为即便是由暂时性故障引起的短暂中断,也可能使其工艺过程脱线,并需要数小时才能恢复生产。
目前有一种趋势是扩展传统可靠性指标,使其也包含短暂中断。
公用配电系统的传统可靠性指标定义如下(参考文献 8):
SAIFI:系统平均中断频率指标(System average interruption frequency index)SAIDI:系统平均中断持续时间指标(System average interruption duration index)CAIFI:客户平均中断频率指标(Customer average interruption frequency index)CAIDI:客户平均中断持续时间指标(Customer average interruption duration index)ASAI:系统平均可用性指标(Average system availability index)
常用定义关系可写为:
SAIFI = (总客户中断次数) / (总客户数)
SAIDI = Σ[(受影响客户数) × (停电持续时间)] / (总客户数)
CAIFI = (总客户中断次数) / (受影响客户数)
CAIDI = Σ(客户中断持续时间) / (总客户中断次数)
ASAI = (客户小时供电可用量) / (客户小时供电需求量)
其中,对全年而言,客户小时供电需求量(customer hours service demand)为 8760 h。
这些指标的典型目标值为:
SAIFI:1.0SAIDI:1.0~1.5 hCAIDI:1.0~1.5 hASAI:0.99983
这些都只是设计目标,实际值当然可能与此存在显著差异。Burke(参考文献 9)报告了一项调查结果:平均 SAIFI = 1.18、SAIDI = 76.93 min、CAIDI = 76.93 min、ASAI = 0.999375。
我们也接触过一些电力公司,其 SAIFI 通常约为 0.5,而 SAIDI 在 2.0~3.0 h 之间。这意味着其故障率低于典型水平(至少对大部分客户而言),但故障修复时间更长。
这在同时包含城市与乡村区段的馈线中可能较为常见。乡村区段故障更常见,但每次受影响客户更少,而且故障定位与修复所需时间更长。

3.7.5 公式与典型目标值
3.7.6 取消保熔丝的影响(Impact of eliminating fuse saving)
应对短暂中断投诉的一种更常见方法,是禁用变电站断路器或重合器的快速跳闸(即保熔丝)功能。这样可以避免因某条支线故障而使整条馈线都发生中断。
许多电力公司发现,这是一种处理供电质量投诉非常有效的方法。其本质上只是尽量减少每个事件所影响(被打扰)的人数。代价是:受影响的熔断支线(fused tap)上的用户会遭受持续中断,直到熔断器被更换,即便该故障原本只是暂时性故障。
电力公司还要承担额外的故障报修出勤成本(trouble call)。而且,这种做法还可能对某些电力公司考核所采用的可靠性指标产生不利影响。
在 1991 年由 Cooper Power Systems 为 EPRI 项目 RP3098-1(参考文献 7)开展的一项公用电能质量实践调查(Utility Power Quality Practices survey)中,40% 的受访电力公司表示,它们曾通过取消快速跳闸来响应客户投诉。在参与调查的投资者所有制电力公司(IOUs)中,60% 采取了这种做法;而在参与调查的公用电力企业(主要是农村电力合作社)中,这一比例只有 30%。
这或许印证了一种广泛看法:城市地区客户对短暂中断的敏感性远高于农村地区。从该调查之后的经验来看,这一趋势仍在持续,甚至可能在加速。
这种针对电能质量投诉的解决方式并不受许多公用系统工程师欢迎。他们更倾向于采用技术上与经济上都更优的方案,也就是保留断路器和重合器的快速跳闸能力。
这不仅能节省运行成本,还能改善衡量公用事业绩效的可靠性指标。传统上,这些指标通常不统计短暂中断,而只统计永久性停电。然而,当我们同时考虑终端用户和公用事业单位的经济影响(即基于价值的分析,value-based analysis)时,公用事业单位的成本可能会被工业终端用户的损失成本完全淹没(参考文献 11)。
如果电力公司原本采用保熔丝实践,那么取消快速跳闸通常会带来一些额外成本。例如,主馈线上的熔断器跌落开关(fused cutouts)可能需要更换,以获得更好的配合。
在某些情况下,还必须增加额外的支线熔断器,以便主馈线能更好地抵御分支故障影响。连同工程设计时间在内,实施这项改造的成本估计约为每条馈线20,000~40,000。
此外,那些原本不会熔断、现在却需要更换的熔断器所带来的额外运行成本,每年可能高达 $2000。尽管这些成本看起来不低,但若与某些终端用户(例如产能可全部售出的塑料袋制造厂)的损失相比,它们就显得相对较小。
一次断路器动作就可能造成3000~10,000 的产量损失和额外人工费用。因此,从整体(或基于价值)的角度看,只要每年能因此减少至少 3~5 次中断(短暂中断与持续中断合计),取消快速跳闸就是经济的。
对可靠性指标的影响在很大程度上取决于馈线结构以及其他分段(sectionalizing)措施的情况。如果关键工业负载靠近变电站,并且馈线其余部分可通过一台仍采用快速跳闸的线路重合器进行隔离,那么这种影响可以非常小。
在馈线上越往远处延伸而又不采用保熔丝,可靠性指标受到的影响就越大。因此,最好将脆弱区域(area of vulnerability)限制得尽可能小,并让具有高服务价值(high economic value of service)的敏感客户尽可能靠近变电站供电(详见 3.7.7)。
取消快速跳闸并不能消除所有会给工业用户造成问题的事件。它只能消除大部分短暂中断。但是,对于因输电系统故障、其他馈线故障,甚至熔断支线故障而引起的电压暂降,它无能为力。
这些事件可能占到扰乱工业过程事件总数的二分之一到三分之二。经验法则是:在雷击诱发故障较多的地区,取消快速跳闸大约可以消除三分之一的工业过程扰乱事件。
当然,这一比例取决于该馈线所服务的工艺类型。一个特别棘手的问题是:当变电站附近其他馈线(甚至同一馈线但位于熔断支线上的部分)发生故障时,会在连接到该母线的所有馈线上造成深度暂降。
针对这一问题,曾提出两种办法:
在从变电站母线引出的每条线路上安装电抗器(reactors),将母线最大暂降限制在约
60%(参考文献 12)在靠近变电站的所有分支支线(branch laterals)上安装限流熔断器,使暂降持续时间很短(见
3.7.11)
居民用户可能会对中断次数表达强烈不满,但在多数情况下,短暂中断几乎不直接造成经济损失。也许最大的麻烦只是要重设家里十几个数字时钟。
事实上,如果取消快速跳闸,反而可能出现更多不利经济影响的案例。例如,装有集水坑水泵(sump pump)的住宅在雷暴期间若因暂时性故障导致其支线熔断器熔断,就可能遭受持续中断,从而增加地下室进水的风险。
一些电力公司针对居民投诉问题采用了另一种方法:在保留快速跳闸的同时,在居民馈线上使用瞬时重合闸(instantaneous reclosing)。通过将重合间隔缩短到 12~20 周波,短暂中断会短到足以使多数数字时钟都能穿越。
这仍不足以帮助较大的工业负载。不过,越来越多的经验性证据表明,许多更新型负载(如可调速驱动器,adjustable-speed drives)如今也能够穿越这种极短中断。
瞬时重合闸并非总是可行,尤其是当馈线上接有分布式发电(distributed generation)时。取消快速跳闸还有一个非预期后果:可能增加变电站变压器故障数量。
重合器在锁定退出(lockout)前默认会动作 4 次。在某些设计中,取消快速跳闸会简单地使永久性故障对应为 4 次延时动作。
而对于永久性故障,几乎没有理由执行 4 次延时动作。这会让变电站变压器承受不必要的越故障电流事件,从而缩短变压器寿命。
如果下游只有需要配合的熔断器,延时动作次数应减少为 2 次。如果下游还有其他机械式中断装置或分段器(sectionalizers),则可能需要 3 次动作。
3.7.7 增强分段(Increased sectionalizing)
美国典型的公用一次配电馈线是由变电站断路器径向供电的。在最简单形式下,它由一条主三相馈线以及带熔断器的一相和三相分支组成,如图 3.40 所示。
为进一步分段馈线、提高整体可靠性,第一步是在馈线上增设一台线路重合器,如图 3.41 所示。如果只关注传统可靠性,人们可能会将重合器布置在馈线中点或负载中点附近。
但若关注电能质量,则根据关键负载位置不同,重合器设置在更靠近变电站的位置可能更好。一种可能的判据是:把它布置在第一个满足“故障电流已降低到几乎总能保证与熔断器在快速跳闸下实现配合”的位置。
另一种判据是:把重合器放在大多数可能投诉短暂中断的关键负载的下游稍远处。采用这一思路后,可以取消变电站断路器的快速跳闸,同时只在馈线很小一部分范围内牺牲保熔丝能力。
如前所述,靠近变电站区域本来就常常难以实现保熔丝。因此,应特别努力使主馈线首段尽量避免暂时性故障。这包括更频繁的维护措施,如修树和清洗绝缘子。
此外,还可采取非常规措施来防止雷击闪络,例如线路屏蔽,或者至少每两跨或三跨安装一只线路避雷器。

Figure 3.40 Typical main line feeder construction with fused taps.
Figure 3.41 Adding a line recloser to the main feeder as the first step in sectionalizing.
“取消快速跳闸会在多大程度上损害可靠性?”这一问题经常被提出。我们曾对若干馈线进行了可靠性分析以研究这一问题。研究中使用的一条馈线采用了与图 3.40 类似的单主馈线结构,不同之处在于单相支线沿馈线均匀分布。
我们采用 Warren(参考文献 10)所描述的城市馈线作为原型。下面将其称为馈线 1(feeder 1)。这是一条均匀的 8-mi 馈线,每隔 0.25 mi 有一个相同的带熔断支线,总负载 6400 kVA。
虽然这未必是现实中的典型馈线,但它非常适合作为研究对象,以便观察某些措施的一般趋势。我们假设主馈线故障率为 0.1 次/年/英里,带熔断支线故障率为 0.25 次/年/英里,且其中 80% 的故障为暂时性故障。
对永久性故障假设统一修复时间为 3 h。我们首先研究基准工况(表 3.7 中的 case 1),假设电力公司采用保熔丝策略,且暂时性故障中 100% 的熔断器都能被“保住”。
对 case 2,禁用了变电站断路器的快速跳闸,并假设支线熔断器无一能够被保住。最后在 case 3 中,我们在距变电站 1 mi 处设置一台三相重合器,并假设其下游所有熔断器都能被保住。
由此得到的 SAIFI 和 SAIDI 可靠性指标见表 3.7。在城市环境下,SAIFI 和 SAIDI(以小时计)的典型目标值都约为 1.0。
虽然这三个工况都不算特别差,但可以明显看出,取消快速跳闸会对可靠性指标产生非常显著的不利影响(将 case 2 与 case 1 比较)。SAIFI 增加了约 60%。
该示例对应的是一条结构非常规则、分段良好、每条支线都有熔断器的馈线;在这种结构中,一只熔断器熔断导致受影响客户比例不到 3%。对于其他馈线结构,这种影响可能更加显著(见后面对馈线 2 的讨论),但本例已足以说明:取消快速跳闸通常会使可靠性恶化。
SAIDI 仅略有上升。变化最大的是熔断器动作次数,其增加了 5 倍。因此,电力公司在风暴天气下可预期会接到明显更多的故障出勤报修。
如果随后再像 case 3 那样增设一台线路重合器,则可靠性指标与熔断器动作次数会恢复到几乎与基准工况相同的水平。实际上,由于线路分段增强,可靠性指标甚至还略有改善,尽管第一分段中的误熔断(nuisance fuse blowings)次数比 case 1 更多。
因此,如果在大多数关键负载之后再增设一台线路重合器,那么在变电站取消快速跳闸通常不会对整体可靠性造成显著负面影响。当然,这里隐含的前提是较关键的负载靠近变电站。

Table 3.7 Reliability Indices Computed for Feeder 1
我们又对另一条馈线研究了同样的三个工况,将其称为馈线 2(feeder 2)。在美国许多地区,这条馈线也许更能代表城乡混合馈线的典型特征。
由于篇幅所限,这里不详细描述其拓扑。与馈线 1 的主要区别在于:馈线结构更随机,而且分段更粗放,支线熔断器数量少得多。故障率假定与馈线 1 相同。
馈线 2 三种工况下的 SAIFI 与 SAIDI 见表 3.8。熔断器熔断次数在该例中未作计算。对于馈线 2,每次熔断器熔断会影响到更多客户。
因此,在取消快速跳闸后,SAIFI 增加超过 3 倍。这进一步强调了良好馈线分段的重要性,以便将对可靠性的影响降到最低。
与馈线 1 类似,case 3 的可靠性指标又恢复到接近 case 1 的水平。

Table 3.8 Reliability Indices for Feeder 2
那么电能质量如何呢?位于线路第一分段中的客户,不仅会获得显著改善的电能质量,可靠性也会改善。在我们对馈线 1 的研究中,平均中断次数(包括短暂中断与持续中断)从每年 15 次降到了略高于每年 1 次。
这是非常显著的改善。遗憾的是,其余客户(即重合器下游客户)的中断次数并不会改变。对此还能做些什么呢?首先想到的办法是在主馈线更下游处再增加一台线路重合器。
由两台重合器之间那段馈线供电的客户会看到改善。如果在我们的 8-mi 均匀馈线例子中把第二台重合器放在下游 4 mi 处,则平均年中断率会降到约 8.3。
但是,馈线末端客户在中断次数方面的改善仍然较小。还可以继续在主馈线和较大分支馈线上串联增设更多线路重合器,以进一步增强分段,同时保留诸如保熔丝之类的期望做法。
这样一来,每次故障所扰动的馈线范围会减小。这通常会改善可靠性(但收益递减),却未必会显著改善用户感知到的电能质量。
对重合器下游馈线区段中断次数影响最大的措施是:
通过修树、安装线路避雷器、防动物装置或其他故障预防技术来降低故障率。
为服务区域提供更多并行供电路径(parallel paths)。
对未参与故障的相不跳闸(见
3.7.10)。
为服务区域提供更多并行路径至少有两种办法:
从变电站新建更多常规馈线。
从主馈线引出更多三相分支馈线来供电。
第一种做法比较直接:直接从变电站再新建一条馈线。这当然可以通过减少每次中断受影响客户数量来改善可靠性和电能质量,但未必是经济可行方案。
而且,在降低中断率方面,它的改善幅度也未必优于与第二种做法相关的一些方案。下面进一步考察第二种思路:从主馈线引出更多三相分支馈线;在多数情况下,这种做法潜在成本更低。
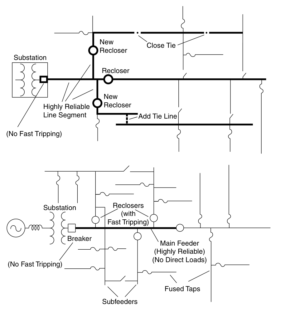
这里提出了两个思路。第一个思路是:先从变电站出线一小段距离,然后把馈线分成两条或三条子馈线(subfeeders)。与用一条长主馈线向同样客户供电相比,这通常可将中断次数分别降低近一半或三分之二。
分支点应设置在略微超出“暂时性故障下对支线熔断器实现保熔丝变得可行”的位置。并在该位置附近的每条分支首端配置一台三相重合器。
为减少同跳(sympathetic tripping)的概率,应当让这些重合器之间间隔一段线路距离。所谓同跳,是指未故障分支上的重合器因与故障相关的暂态电流而误动作跳闸。
图 3.42 展示了在现有馈线上、且假定图示位置已有导线截面积足够的三相馈线存在时,如何通过最小改造来实施这一原则。第二个方案如图 3.43 所示:先建设一条高度可靠的主馈线,将其深入服务区域较长距离。
这条主馈线本身几乎不直接带负载。相反,负载由定期从主馈线分接出的三相分支馈线供电。每条分支馈线首端配置一台三相线路重合器。
当然,在变电站侧不采用快速跳闸,以限制主馈线上的短暂中断。同时,会特别努力地防止主馈线这一部分发生故障。从本质上讲,主馈线成为了变电站母线的延伸;在设计上允许其全寿命周期内故障次数略高于母线本身。
而各分支馈线则类似于从变电站直接向服务区各部分提供独立馈线,只是希望成本能显著更低。这些思路是否适用于某一特定电力公司,取决于许多因素,包括地形、负荷密度、负荷分布以及既有建设实践。
这里提出这些思路,仅作为实现“比简单串联叠加故障中断装置更低平均中断率”的备选方案供考虑。尽管这些做法未必会广泛普及,但对于处理某些由于中断过多而引发的棘手电能质量投诉问题,它们可能非常有用。

Figure 3.42 Reconfiguring a feeder with parallel subfeeders to reduce the average number of interruptions to all customers.
Figure 3.43 Designing a feeder with multiple three-phase subfeeds off a highly reliable main feeder.
3.7.8 馈线中部或分支重合器(Midline or tap reclosers)
尽管许多电力公司通过取消快速跳闸来回应投诉,调查中仍有约 40% 的电力公司表示,它们有兴趣增加更多线路重合器,以改善客户对电能质量的感受。这样做可以实现更细的馈线分段,并且有可能使馈线大部分区域重新采用保熔丝策略。
如果整条馈线都因为主要集中在某一特定区域的故障而被中断,那么这种做法会非常有效。把重合器布置在馈线更靠外的位置后,它会优先尝试清除故障,从而减少因一次闪断(blink)而受到影响的客户数量。
如果同时还需要取消变电站断路器的快速跳闸,那么正如前文所述,只有更靠近变电站的一小段馈线会面临“暂时性故障导致熔断器熔断”的风险。这与通常情况相比差别并不大,因为在靠近变电站的高故障电流区域,本来就很难防止熔断器熔断。
也有少数电力公司做了相反的事,即为应对短暂中断投诉而拆除线路重合器。可能的原因是:某段馈线穿越树林茂密区域,导致重合器频繁动作;或者装置因谐波或负载不平衡引起的高接地电流而发生误跳闸。
无论原因是什么,这种做法都不常见,并且与大多数电力公司的发展方向相反。目前的主要问题似乎已经不是“是否需要更多线路重合器”,而是“如何配置它们,才能同时实现提高电能质量与提升供电可靠性这两个目标”。
3.7.9 瞬时重合闸(Instantaneous reclosing)
瞬时重合闸是指在故障电流切除后 12~30 周波内进行重合,通常只用于第一次动作。这项功能作为断路器和重合器的标准特性已经存在较长时间,并且一些电力公司(尤其在变电站断路器上)将其作为标准做法。
然而,这种做法从未得到普遍接受。许多电力公司重合时间不快于 2 s(液压式重合器的标准重合间隔),有些甚至更长。在观察到许多数码时钟、甚至一些电机驱动负载都能够成功穿越 12~30 周波中断之后,一些电力公司开始试验在保留快速跳闸保熔丝的同时采用瞬时重合闸。
有一家在 12-kV 馈线上开展此类试验的电力公司报告称:断路器和重合器动作次数没有显著增加,而投诉数量有所下降(参考文献 11)。因此,这值得其他电力公司考虑,但需要注意:在更高电压等级以及某些线路设计下,未必能获得相同效果。
在一些公用系统工程师眼中,瞬时重合闸名声并不好。一个风险是电弧产物没有足够时间扩散,导致故障无法清除。一些电力公司在较高配电电压等级和特定线路结构下确实遇到过这种情况。
当这种情况发生时,变电站变压器会不必要地承受重复越故障电流。这可能导致变压器故障增加。不过,如果没有迹象表明瞬时重合闸导致断路器动作次数增加,那么使用它应当是安全的。
另一个担忧是在重合时旋转电机中会产生很高的转矩。这在分布式发电(DG)场景中特别重要,因为 12~30 周波可能不足以保证发电机保护继电系统检测到公用系统侧问题并完成离线(见第 9 章)。
对于接有 DG 的馈线,重合间隔应至少为 1~2 s,以降低公用系统在 DG 未同步情况下重合到 DG 上的概率。有些电力公司甚至采用 5 s。
公用系统帮助防止这类情况的一种方法,是使用一种常见的重合器附件:当负载侧仍有电压存在时,禁止重合(blocks reclosing)。如果系统中尚未安装合适的电压互感器(potential transformers),这可能会带来较高额外成本。
3.7.10 单相跳闸(Single-phase tripping)
公用配电系统中的大多数三相断路器和重合器在动作时会同时切除三相。一种被提出、用于减少客户暴露于短暂中断风险的方法是:只跳开故障相或故障相组。
由于许多负载是单相负载,对于大多数故障,这将自动把暴露范围减少约三分之二。这一方法的主要问题在于:如果三相负载长时间处于缺相(single-phased)状态,可能会被损坏。
因此,通常认为不宜在承载较多三相负载的三相分支上使用单相重合器。当然,当馈线仅服务单相负载时,这种做法相当常见。这个问题可以通过一种能够在判定故障是否为永久性故障之前,对各相独立操作的三相断路器或重合器来解决。
随后,一旦判断故障是永久性的,为防止三相负载单相运行,当中断装置锁定退出(lockout)时会将三相全部断开。这类装置已可从配电设备供应商处获得(见图 3.37)。
3.7.11 限流熔断器(Current-limiting fuses)
限流熔断器常用于故障电流很高、且内部故障可能导致灾难性损坏的电气设备中。由于它们比传统喷射式熔丝(expulsion links)更昂贵,因此通常只应用在故障电流超过 2000~3000 A 的位置。
图 3.44 给出了限流熔断器的示例。限流熔断器有多种设计,但基本结构都是:将细带状熔体或导线绕在骨架上,并封装在充有特殊砂料的密封绝缘管中。
该管体通常采用玻璃纤维-环氧树脂复合材料等坚固材料制成,以承受开断过程中产生的压力而不发生破裂。

Figure 3.44 Various types of current-limiting fuses used in utility applications. (Courtesy of Cooper Power Systems.)
在开断过程中,熔体会在多个位置同时熔化,并在熔砂帮助下迅速建立一个与电流方向相反的压降。电流会在约四分之一周波内被迫降为零。
限流熔断器的主要用途是防止过大故障电流造成损坏。就电能质量而言,它还有一个有益副作用:故障引起的电压暂降持续时间非常短。
图 3.45 显示了限流熔断器在单相接地故障(single-line-to-ground fault)期间动作时的典型电压和电流波形。由于故障发生,电压会立刻降到约 40%;随后随着熔断器中峰值电弧电压形成并切断电流,电压迅速恢复并过冲到约 140%。
注意图中的电流波形被测量仪器削顶(clipped)了。该电压暂降持续时间极短,因此不会对太多工业过程造成不利影响。因此,一种被提出的做法是在靠近变电站、故障电流较高区域内的每条分支支线上都安装限流熔断器,以减少影响工业过程的暂降次数。
当限流熔断器首次大量用于公用系统时,人们曾担心其峰值电弧电压暂态(超过系统电压)会损坏避雷器和系统绝缘。事实证明,这并不是一个显著问题。
这种过电压与电容器投切暂态过电压处于同一量级,而后者在多数公用系统中几乎每天都会发生数次,却通常不会造成严重后果。

Figure 3.45 Typical current-limiting fuse operation show- ing brief sag followed by peak arc voltage when the fuse clears.
3.7.12 自适应继电保护(Adaptive relaying)
自适应继电保护(adaptive relaying)是指根据当前系统工况,改变过流保护装置的继电特性(relaying characteristics)的做法。当前与此相关的一项实际应用,是根据天气状况启用或停用断路器的快速跳闸。
这通常通过无线电或电信链路与公用系统调度控制中心联动实现。也可以通过具备检测附近雷电或降雨能力的本地装置来实现。如果风暴临近,则启用快速跳闸,以便在预计暂时性故障高发时保住熔断器。
在风暴期间,终端用户通常更容易理解,也不太可能就中断提出投诉。在其他时段则关闭快速跳闸,并允许熔断器熔断。这并不意味着在无风暴时就不会发生暂时性故障。
动物随时可能爬上电气构筑物并引发故障。植被生长也可能足以导致故障。然而,公众通常对晴天发生的中断容忍度要低得多。
3.7.13 忽略三次谐波电流(Ignoring third-harmonic currents)
由于系统中计算机和其他电子负载数量增加,三次谐波电流水平一直在上升。许多馈线上的剩余电流(residual current,即三相电流之和)中,三次谐波分量与基波分量一样大。
一种常见情况是:各相电流具有中等程度畸变,THD 约为 7%~8%,且畸变主要由三次谐波构成。三次谐波电流在中性线中直接叠加,因此中性线中的三次谐波电流约为相电流的 20%~25%,并且常常与中性线中的基波电流一样大,甚至更大(见第 5、6 章)。
由于三次谐波电流主要是零序分量(zero-sequence),它会影响接地故障继电保护(ground-fault relaying)。曾发生过因接地继电回路中谐波电流过大而导致误跳闸和锁定退出(lockout)的事件。
我们至少调查过一起事件,它与电容器投切有关,怀疑是由于谐振使三次谐波电流被进一步放大。可能还有更多我们尚未听闻的事件,并且预计未来这一问题只会变得更严重。
最简单的解决方案是在运行规程允许时提高接地故障启动值(ground-fault pickup level)。遗憾的是,这会降低故障检测灵敏度,从而背离设置接地继电保护的初衷;并且一些电力公司还受标准限制,不能提高接地跳闸值。
人们观察到,如果能把三次谐波滤除,就可能把接地继电保护整定得更灵敏。三次谐波电流几乎完全由负载决定,并不是故障电流的组成部分。
当故障发生时,继电保护所见电流主要是正弦波。因此,为实现故障检测,继电保护并不需要监测三次谐波。最早期的继电器是电磁式装置,它们基本上响应电流的有效值(rms)。
因此,多年来电子式继电器通常被设计成复制这种响应方式,而数字式继电器也一般会包含较重要的低次谐波分量。回过头看,对于接地故障继电器而言,如果当初忽略三次谐波会更好。
不过,在相继电保护(phase relaying)中监测三次谐波仍有合理理由,因为相继电保护不仅用于检测故障,也用于检测过载。而过载评估通常是一个有效值(rms)量。
3.7.14 公用系统故障预防(Utility fault prevention)
消除公用系统故障切除操作相关投诉的一个可靠办法,是从根本上消除故障。当然,故障不可能完全不存在,但有很多方法可以显著降低故障发生率(参考文献 18)。
架空线路维护(Overhead line maintenance)
树木修剪(Tree trimming)。这是减少架空线路故障数量更有效的方法之一。这是一项必要工作,尽管公众可能会抱怨其对环境和景观的影响。
绝缘子清洗(Insulator washing)。类似于林区中的树木修剪,在沿海和多尘地区,绝缘子清洗也是必要的。否则,即便是没有雷电的轻微降雨,也会造成大量绝缘子闪络。
屏蔽线(Shield wires)。防雷屏蔽线在公用输电系统中很常见。除非某些线路的雷击发生率异常高,否则它们通常不会用于配电馈线。
一些电力公司会将馈线的中性线架设在顶部,甚至抬高电杆,以提供一定屏蔽作用。但任何屏蔽都不可能完美。改善电杆接地(Improving pole grounds)。一些电力公司报告称,他们通过这样做来改善与故障相关的电能质量。
不过,我们并不完全确定这样做的所有原因。也许它使故障更容易被检测到。如果采用了屏蔽,这样做会降低反击闪络率(backflashover rate)。
如果没有采用屏蔽,则除非与线路避雷器应用相结合(见下文“线路避雷器”),否则这似乎不会在防雷方面带来明显好处。改进导线间距(Modified conductor spacing)。采用不同的导线间距有时可以提高闪络耐受水平,或者降低树枝接触线路的概率。
树线(Tree wire,绝缘/包覆导线)。在不适合进行树木修剪的区域,绝缘或包覆导线可以降低树障引发故障的可能性。地下配电电缆(UD cables)。地下配电(UD)电缆中的故障预防技术通常与保护绝缘层免受电压浪涌损害有关。
随着电缆老化,其绝缘会显著退化,因此需要越来越多的措施来保持电缆状态良好。这通常包括采用避雷器保护方案,将来自架空系统的雷电浪涌引开;也有一些做法通过向电缆注入流体来恢复绝缘水平。
由于几乎所有电缆故障都是永久性故障,因此其电能质量问题更多在于如何快速找到故障位置,以便人工分段并修复电缆。用于该目的的故障定位装置在 3.7.15 中讨论。
线路避雷器(Line arresters)。为防止架空线路故障,通常需要做到以下三者之一:提高线路绝缘水平、阻止雷击打到线路、或防止线路电压超过绝缘耐受水平。随着避雷器设计不断改进,第三种思路正变得越来越流行。
为实现这一点,可沿馈线每隔两三根电杆设置一只浪涌避雷器,并在配电变压器处也安装避雷器。一些电力公司在三相都安装,而另一些只安装在最可能遭受雷击的相上。
为了支持近年关于改善电能质量、或用超高可靠性主馈线提供定制供电(custom power)的一些思路,就有必要在每根电杆的每一相上都安装避雷器。目前,在变压器位置正常配置避雷器之外,再额外在线路上安装避雷器,通常只用于那些有大量雷击诱发故障历史的线路区段。
但近来一些电力公司声称,在线路上布置避雷器不仅比屏蔽更有效,而且更经济(参考文献 14)。在一些城市和郊区馈线区段,由于负荷密度较高,需要至少每隔两三根电杆安装一台配电变压器,因此它们天然就接近“每两三根杆一只避雷器”的目标。
在多雷地区,每台变压器通常都会在一次侧安装避雷器。
3.7.15 故障定位(Fault locating)
快速定位故障,是可靠性和供电质量的重要组成部分。
故障回路指示器(Faulted circuit indicators)
查找电缆故障往往相当具有挑战性。电缆埋在地下,通常无法直接看到故障点,尽管偶尔会有外部物理迹象。为了加快定位,许多电力公司使用“故障回路指示器(faulted circuit indicators)”,简称“故障指示器(fault indicators)”,以更快确定故障区段。
这类装置会在电流超过某一设定值时翻转目标指示(target indicator)。其思路是在每台箱式变压器(pad-mount transformer)处都装一个;最后一个显示动作目标的指示器,通常位于故障区段之前。
关于故障回路指示器额定值选取,主要有两种观点:
传统观点认为,应选取额定值为电缆最大预期负载电流的
2~3倍,这样可获得较灵敏的故障检测能力。相反观点认为,这样过于灵敏,正是许多故障指示器误指示(false indication)的原因。其解释是:故障发生时,电缆中储能释放产生的电流足以使指示器动作,因此故障点下游的少数几个指示器也可能显示故障。该观点给出的解决办法是:按可用最大故障电流而不是最大负载电流来确定指示器额定值。这建立在“多数电缆故障会很快发展为金属性短路(bolted faults)”这一假设之上,因此额定值通常按留有
10%~20%裕度来选取。
影响故障指示器应用的另一个问题是分布式发电(DG)。当馈线上存在多个可提供故障电流的电源时,误指示会增加。在某些情况下,位于发电机位置与故障点之间的所有故障指示器都可能动作。
在这种环境下,寻找能够充分工作的新技术将是一项挑战。这只是 DG 渗透率足以显著改变故障电流时,对公用系统实践产生微妙影响的一个例子。
故障指示器在下一次故障事件前必须复位。有些必须人工复位,而另一些具有多种检测(或假定)供电恢复并自动复位的方式。这些方式包括:测试点复位(test point reset)、低电压复位(low-voltage reset)、电流复位(current reset)、静电复位(electrostatic reset)和定时复位(time reset)。
无故障指示器时的电缆故障定位(Locating cable faults without fault indicators)
若没有故障指示器,电力公司只能依赖更偏人工的方法来查找故障位置。电缆故障定位技术种类很多,逐一详细说明超出本书范围。下面给出若干常见方法类别。
冲击放电法(Thumping)。这是一种常见做法,存在许多细微变体。其基本技术是向电缆施加足以重新击穿故障点的直流电压,然后尝试通过视觉、听觉或触觉来检测故障点的物理响应。
一种常见方式是使用电容器组储能,以产生足够响亮的放电声。站在故障点上方地面的人可以感受到并听到放电产生的“砰击(thump)”。
有些做法会把该方法与电缆雷达技术结合,以确认距离估计结果。许多人担心冲击放电法可能对电缆完好区段造成潜在损伤。电缆雷达及其他脉冲法(Cable radar and other pulse methods)。这些方法利用行波理论来估算故障距离。
电缆中的波传播速度是已知的。因此,若向电缆注入一个脉冲,则反射波返回所需时间与到故障点的电缆长度成正比。开路故障会使电压波产生同极性反射,而短路故障会产生反极性反射。
电流脉冲的反射规律则相反。如果已知电缆路径,那么沿线路测量即可找到故障位置。然后可通过冲击放电法进一步确认并精细定位。在某些系统中,一条电缆会分出多个支路。
这时仅知道故障距离还不够,还必须确定故障位于哪个分支上。这可能是一个非常困难的问题,至今仍是快速定位电缆故障的主要障碍之一。
音频法(Tone)。音频系统会向电缆注入高频信号,并用专用接收器沿线跟踪电缆路径。该技术有时用于在电缆带电时追踪路径,但对故障定位同样有用,因为故障点之后音频信号会消失。
利用熔断器逐段追故障(Fault chasing with a fuse)。做法是对电缆进行人工分段,然后逐段重新送电,直到某处熔断器熔断。通过排除法或观察故障点的物理显示来确定故障区段。
由于存在危险因素以及损坏电缆部件的可能性,一些电力公司强烈不建议使用这种方法。另一些则要求使用小容量限流熔断器,以尽量减少注入故障点的能量。
这可能是一种昂贵且耗时的方法,一些人认为它在故障定位方法中效果最差,应仅作为最后手段使用。这种做法还会给终端用户带来烦扰性的电压暂降(nuisance voltage sags)。
3.8 参考文献(References)
说明:
为保证检索准确性,作者名、会议名、标准号等保留原文格式。
条目标题给出中文译意,便于阅读。
Lamoree 等:电压暂降对工业厂负载的影响(“The Impact of Voltage Sags on Industrial Plant Loads”),First International Conference on Power Quality, PQA ’91, Paris, France.
Vinett 等:应用超导磁储能装置改善设施供电质量(“Application of a Superconducting Magnetic Energy Storage Device to Improve Facility Power Quality”),Proceedings of the Second International Conference on Power Quality: End-use Applications and Perspectives, PQA ’92, Atlanta, GA, September 1992.
Beam 等:电能质量案例研究,电压暂降对公用事业与工业客户的影响(“Power Quality Case Studies, Voltage Sags: The Impact on the Utility and Industrial Customers”),Third International Conference on Power Quality, PQA ’93, San Diego, CA, November 1993.
Lamoree 等:电压暂降分析案例研究(“Voltage Sag Analysis Case Studies”),1993 IEEE I&CPS Conference, St. Petersburg, FL.
McGranaghan 等:工业系统中的电压暂降(“Voltage Sags in Industrial Systems”),IEEE Transactions on Industry Applications, vol. 29, no. 2, March/April 1993.
Le Tang 等:配电系统电压暂降与电机/驱动负载的相互作用(“Distribution System Voltage Sags: Interaction with Motor and Drive Loads”),IEEE Transmission and Distribution Conference, Chicago, IL, April 10-15, 1994, pp. 1-6.
EPRI RP 3098-1:配电电能质量评估(“An Assessment of Distribution Power Quality”),Electric Power Research Institute, Palo Alto, CA.
IEEE 配电可靠性指标指南(“IEEE Standard Guide for Electric Power Distribution Reliability Indices”),IEEE Standard 1366-2001.
James J. Burke:配电工程,基础与应用(“Power Distribution Engineering: Fundamentals and Applications”),Marcel Dekker, Inc., 1994.
C. M. Warren:降低短暂停电对配电可靠性指标影响的研究(“The Effect of Reducing Momentary Outages on Distribution Reliability Indices”),IEEE Transactions on Power Delivery, July 1993, pp. 1610-1617.
Dugan 等:公用断路器快速跳闸对工业负载中断的影响(“Impact of Fast Tripping of Utility Breakers on Industrial Load Interruptions”),Conference Record of the 1994 IEEE/IAS Annual Meeting, Vol. III, Denver, October 1994, pp. 2326-2333.
Roughan, Freeman:电能质量与电力公司,降低馈线故障对用户的影响(“Power Quality and the Electric Utility, Reducing the Impact of Feeder Faults on Customers”),Proceedings of the Second International Conference on Power Quality: End-use Applications and Perspectives (PQA ’92), EPRI, Atlanta, GA, September 28-30, 1992.
Lamoree 等:用于保护关键用户设施的微型 SMES 系统描述(“Description of a Micro-SMES System for Protection of Critical Customer Facilities”),IEEE Transactions on Power Delivery, April 1994, pp. 984-991.
Randall A. Stansberry:配电回路保护,架空屏蔽线与防雷浪涌避雷器比较(“Protecting Distribution Circuits: Overhead Shield Wire Versus Lightning Surge Arresters”),Transmission & Distribution, April 1991, pp. 56ff.
Santoso 等:1.7 MVA 基于 SMES 的暂降保护器建模与分析(“Modeling and Analysis of a 1.7 MVA SMES-based Sag Protector”),Proceedings of the 4th International Conference on Power System Transients Conference, Rio de Janeiro, Brazil, June 24-28, 2001, pp. 115-119.
Math H. J. Bollen:理解电能质量问题,电压暂降与中断(“Understanding Power Quality Problems, Voltage Sags and Interruptions”),IEEE Press Series on Power Engineering, The Institute of Electrical and Electronics Engineers, Inc., New York, 2000.
SEMI 标准 F-47,Semiconductor Equipment and Materials International, 1999.
IEEE Standard 1346-1998:评估电力系统与电子工艺设备兼容性的推荐实践(“Recommended Practice for Evaluating Electric Power System Compatibility with Electronic Process Equipment”)。
<!-- Translation Use Notice -->
原著信息:《Electrical Power Systems Quality, Second Edition》,原著作者(常见版权页署名):Roger C. Dugan、Mark F. McGranaghan、Surya Santoso、H. Wayne Beaty。本译文仅供个人学习与学术交流使用,严禁以任何形式用于商业目的(包括但不限于销售、授权、付费传播、商业培训等)。本文档不代表原作者或出版社观点,书名、作者名及相关版权均归原权利人所有。